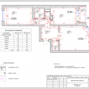
Место расположения Москва Количество комнат 2 Общая площадь квартиры 63,3 Серия дома ИП-46/С Сроки разработки 23 Год реализации 2013 Перечень помещений Спальня, Гостиная, Кухня, Ванная, Санузел, Прихожая Стоимость 75000 Заключить договор Дизайн интерьера двухкомнатной квартиры общей площадью 63,3 м2 расположенной в серии дома ИП-46С. Дизайн интерьера 2 комнатной квартиры фото: Раздел: Дизайн квартир Дизайн 2 комнатной квартиры Москва ИП 46/С Дизайн квартиры Другие объекты Интерьер однокомнатной квартиры в ЖК Новомолоково Дизайн интерьера трехкомнатной квартиры на ул. Марии Ульяновой Ремонт однокомнатной квартиры Ленинский Ремонт двухкомнатной квартиры в Бутово Дизайн интерьера 2 комнатной квартиры на Маршала Рокоссовского Капитальный ремонт трехкомнатной квартиры П-30 Проект дизайна квартиры, Дорогомиловская Дизайн однокомнатной квартиры, Литовский бульвар Ремонт под ключ трехкомнатной квартиры в Люблино