Для составления дизайн-проекта необходимо пройти несколько этапов:
- Вы набираете наш номер телефона +7 (495) 235-6588 или отправляете заявку через форму обратной связи;
- Мы договариваемся о встрече на объекте в удобное для вас время;
- Наш архитектор приезжает к вам на объект. Записывает все пожелания, составляет техническое задание и выполняет замер. Это позволит понять точную площадь и габариты объекта. Ниже представлены фотографии квартиры с проведения обмерных работ:
- После встречи в течении 3-4 рабочих дней мы вычерчиваем обмерный план. Выполняем эскизный дизайн-проект, т.е. накидываем возможные варианты планировочных и пере- планировочных решений. Договариваемся о встрече, для обсуждения и корректировки эскизного дизайн-проекта. Выбираем и доводим планировку до идеала:
- Далее мы просим вас подобрать от 3 до 10 картинок. Которые вам нравятся по общему оформлению и стилю. Это необходимо, чтобы мы с вами говорили об одном и том же. При разработке дизайна интерьера квартиры мы будем руководствоваться этими картинками. Ниже представлены картинки, присланные заказчиком:
- После, на основе утвержденной планировки с расстановкой мебели и на основе присланных вами картинок, мы приступаем к 3D визуализации. Вам предоставляетсяя от 2 до 3 видовых ракурсов на каждое помещение.
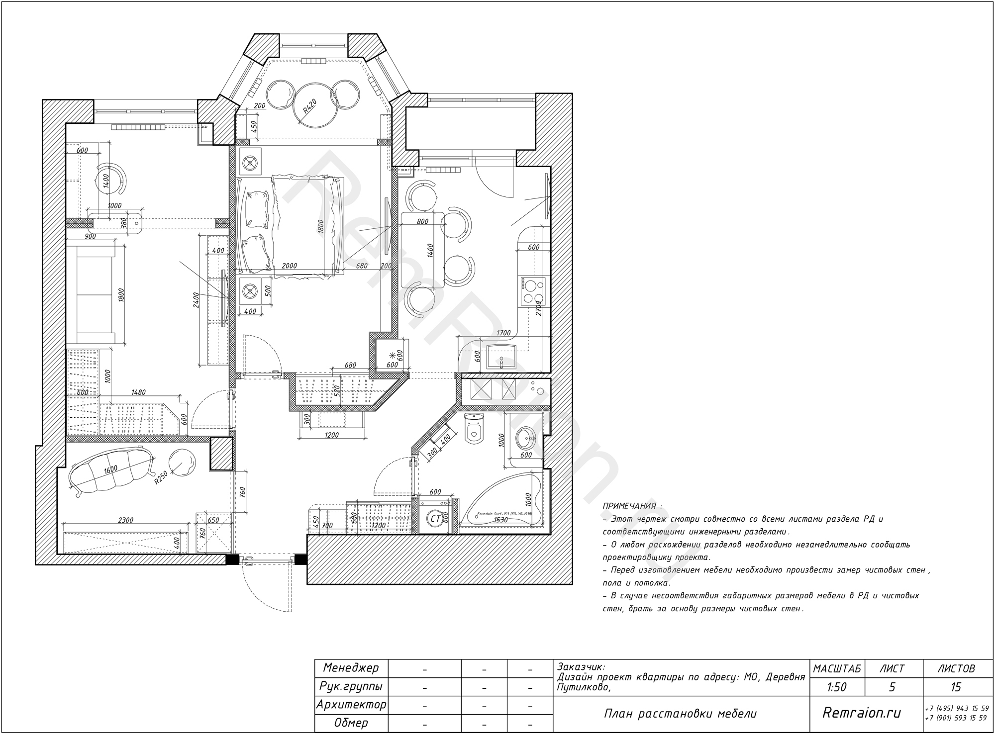
- Последний этап разработки дизайн-проекта это разработка рабочей документации. Данный раздел выполняется на основании 3D визуализации.
Разработка Дизайн проекта квартиры:
- Посмотреть все примеры дизайн-проекта квартиры
- Посмотреть все примеры дизайн-проекта квартиры
- Все примеры дизайн-проекта загородного дома
- Примеры дизайн-проекта однокомнатной квартиры
- Примеры дизайн-проекта двухкомнатной квартиры
- Примеры дизайн-проекта трехкомнатной квартиры
- Примеры дизайн-проекта со свободной планировкой
- Примеры дизайн-проекта офиса
- Стоимость дизайн-проекта квартиры
- Стоимость дизайн-проекта загородного дома
- Стоимость дизайн-проекта офиса