Дизайн трехкомнатной квартиры в ЖК AFI Park Воронцовский

Место расположения Москва, ЖК AFI Park Воронцовский
Количество комнат 3
Общая площадь квартиры 94,8
Серия дома Индивидуальная
Год реализации 2025
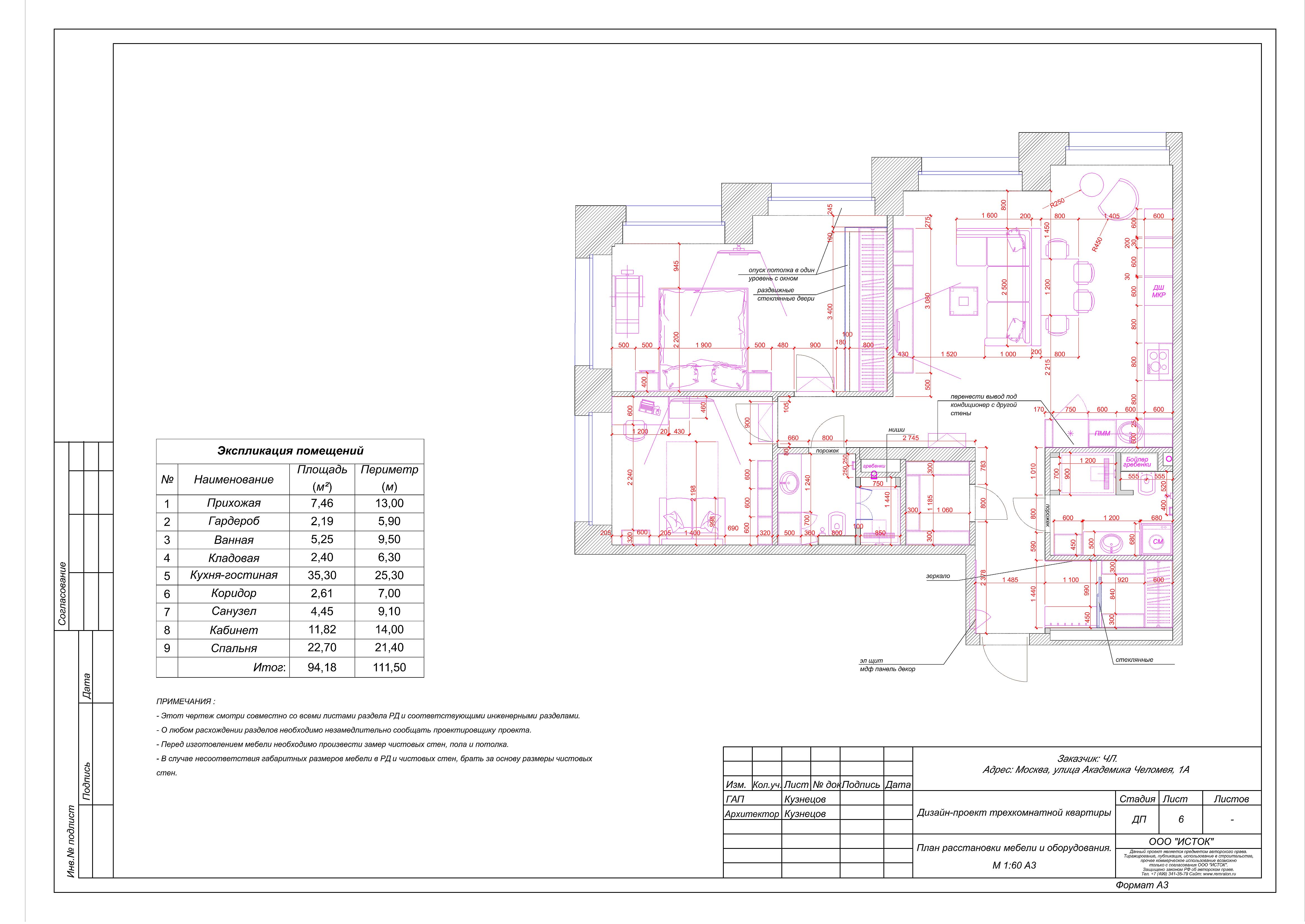
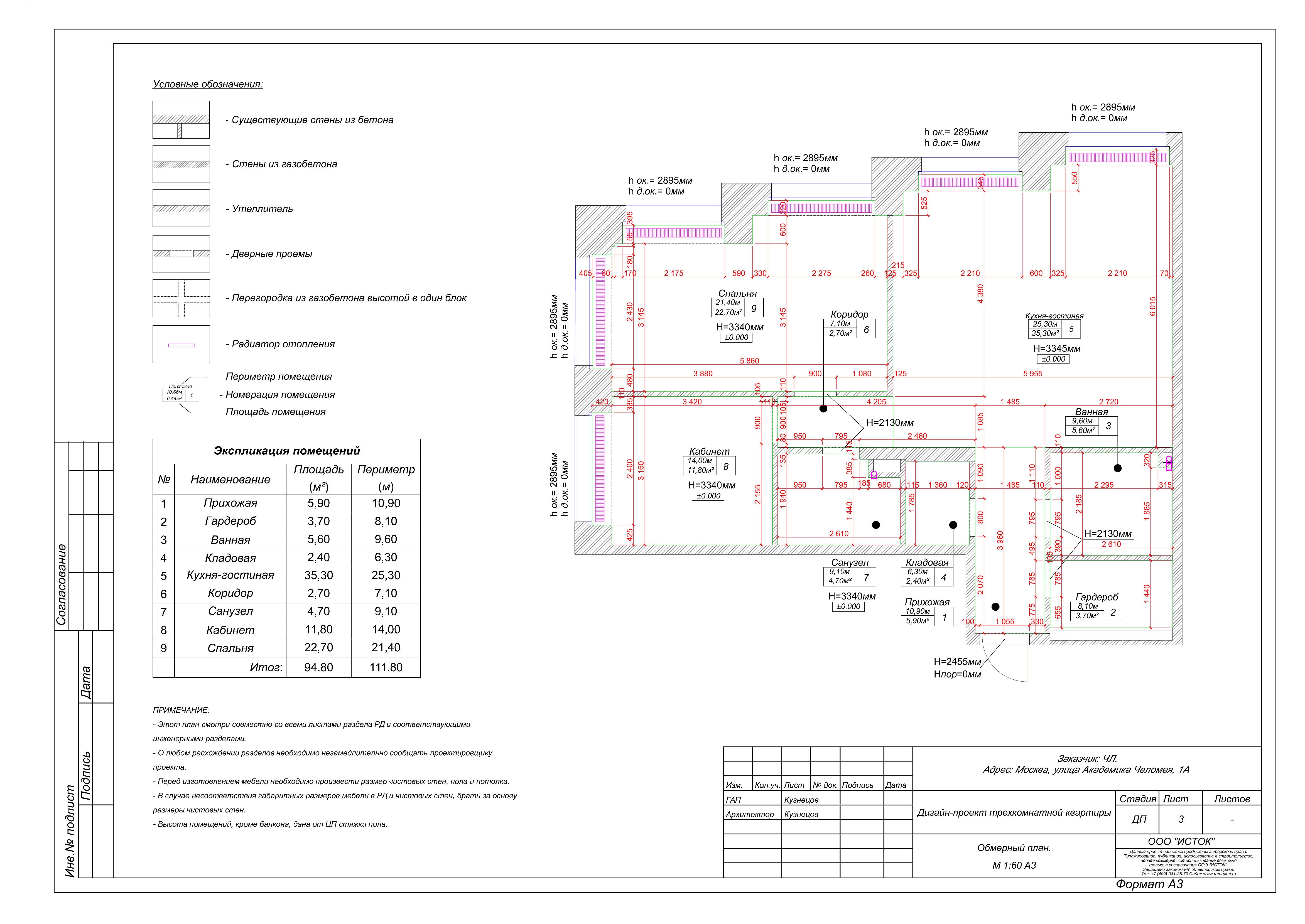
Перечень помещений Спальня, Кухня-гостиная, Ванная, Санузел, Гардеробная, Прихожая, Коридор, Кабинет, Постирочная
Дизайн трехкомнатной квартиры в ЖК AFI Park Воронцовский

Дизайн интерьера трехкомнатной квартиры в ЖК AFI Park Воронцовский.

Визуализация дизайна квартиры.

Проект дизайна интерьера трехкомнатной квартиры.

Чтобы заказать оформление интерьера вашей квартиры нажмите на кнопку ниже.


Top.Mail.Ru