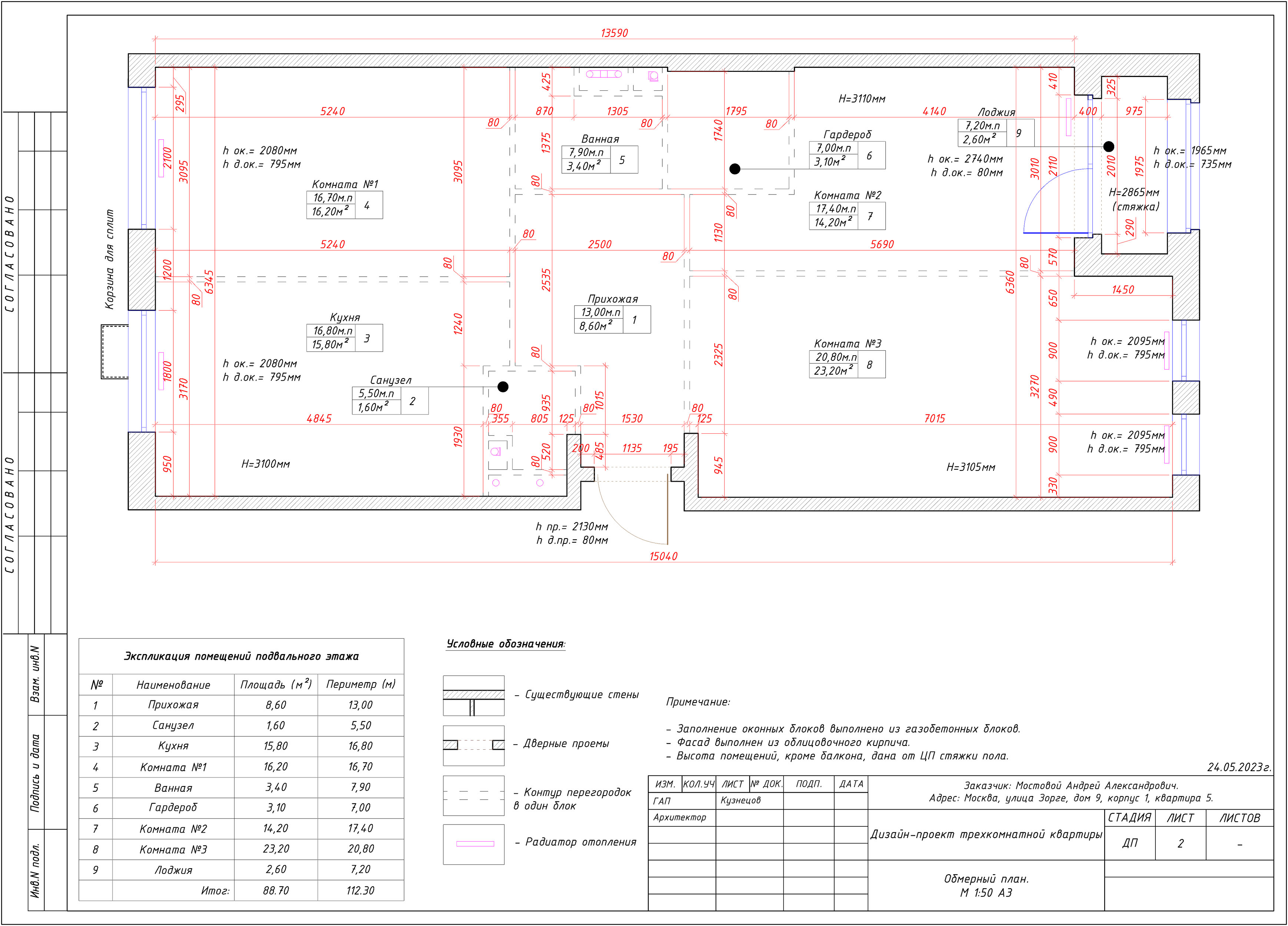
Место расположения ЖК Рихард Количество комнат 3 Общая площадь квартиры 88.7 Серия дома Индивидуальная Год реализации 2023 Ссылка на ремонт Выполненный ремонт Заключить договор Дизайн трехкомнатной квартиры в ЖК Рихард Дизайн интерьера 3х комнатной квартиры в ЖК Рихард. Визуализация дизайна квартиры. Проект дизайна интерьера трехкомнатной квартиры в ЖК Рихард. Чтобы заказать оформление интерьера вашей квартиры нажмите на кнопку ниже. Заказать проект дизайна квартиры Раздел: Дизайн квартир