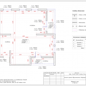
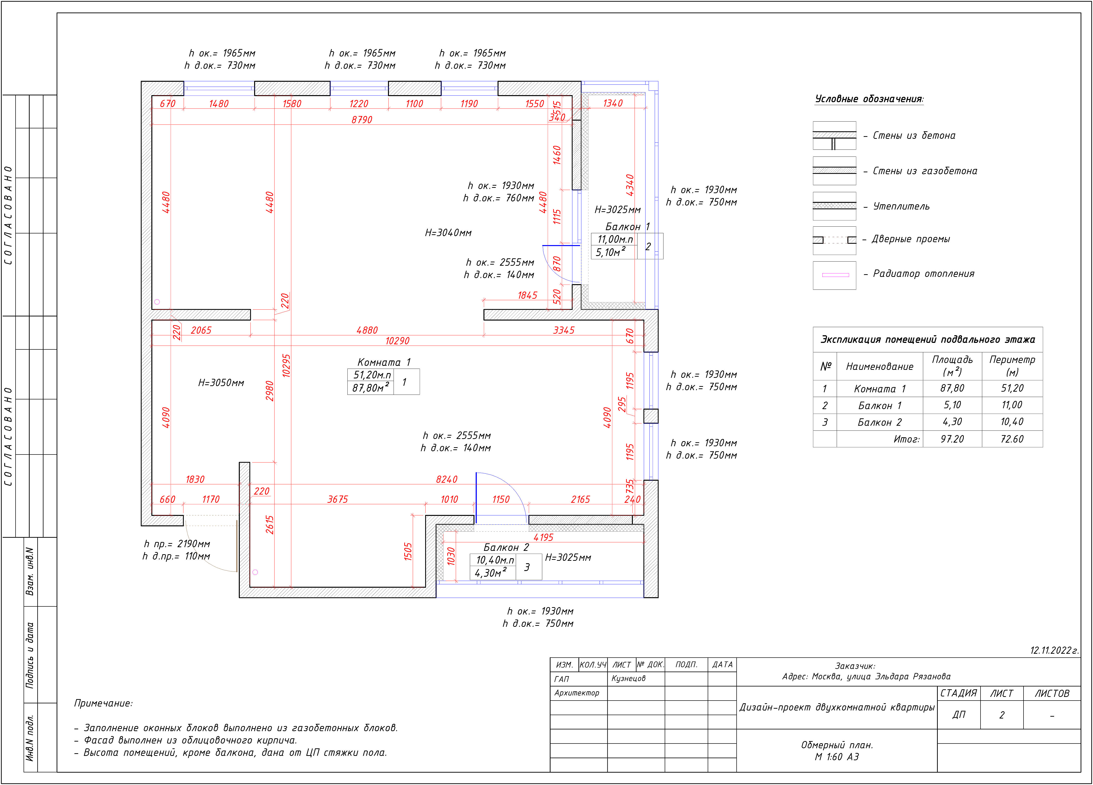
Проект дизайна трехкомнатной квартиры на Эльдара Рязанова
Проект дизайна трехкомнатной квартиры на Эльдара Рязанова.
Визуализация дизайна.
Проект дизайна интерьера трехкомнатной квартиры.
Чтобы заказать оформление интерьера вашей квартиры нажмите на кнопку ниже.