Дизайн интерьера офисного пространства выполненный в современном стиле. Покраска, клинкерная плитка под белый кирпич, много стекла, дерево, металл. Все это нашло применение в нашем проекте. Обратите внимание на крышу переговорной комнаты, она выполнена из медных листов. Этот дизайнерский прием придает брутальности всему интерьеру. Офисные столы выполнены из массивной металлической конструкции со столешницей из крашенного стекла. Потолок раскрашен в цвета Российского флага, что подчеркивает офис отечественного производителя.
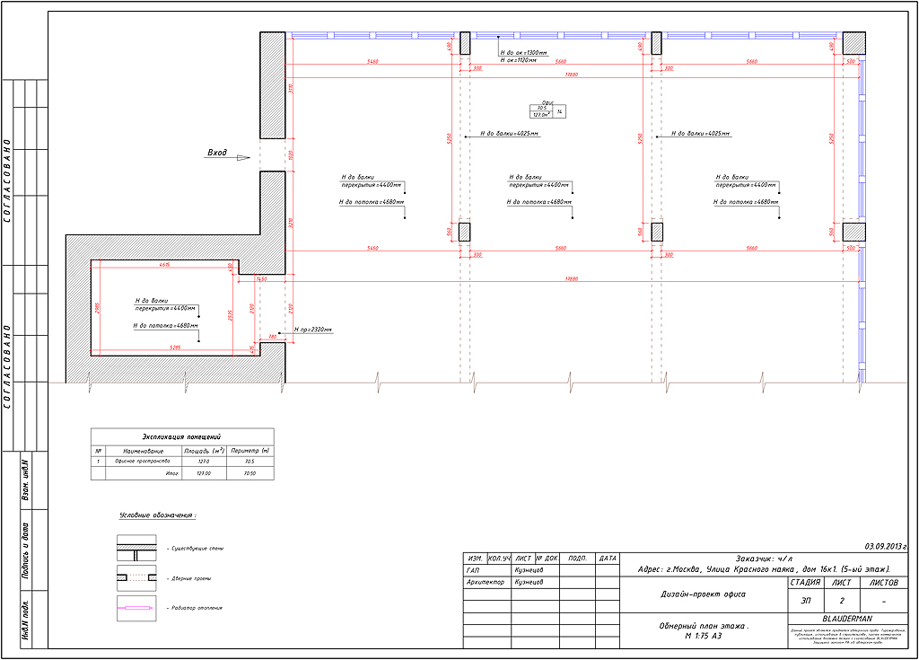
- Общая площадь 137
- Стоимость 100000
- Перечень помещений Ресепшн, Кабинет, Зал ожидания, Рабочий зал, Переговорная, Кабинет, Кабинет руководителя, Кухня
- Год реализации 2013
- Сроки разработки 21
- Место расположения Москва
Раздел:
Дизайн офисов


